app logo
Эксклюзивный
property image
property image
property image
Эксклюзивный

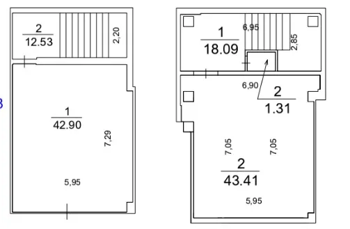
Продается коммерческая недвижимость улица Паруйра Севака

улица Паруйра Севака, Канакер-Зейтун, Ереван

ID 416982

$ 220,000

$1,860.63/ м²

118.24 м²

1/18

Другое

Монолит

Внутри строения

Без ремонта

3,0м

Новостройка

Последнее изменение:10.03.2026

Похожие объявления

Похожие объекты не найдены