app logo
Эксклюзивный
property image
property image
property image
Эксклюзивный

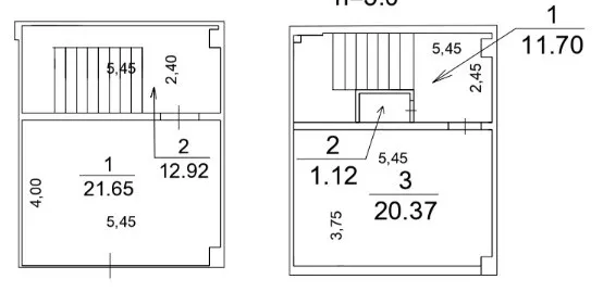
Продается коммерческая недвижимость улица Паруйра Севака

улица Паруйра Севака, Канакер-Зейтун, Ереван

ID 416981

$ 130,000

$2,318.95/ м²

56.06 м²

1/18

Другое

Монолит

Внутри строения

Без ремонта

3,0м

Последнее изменение:10.03.2026

Похожие объявления

Похожие объекты не найдены