app logo
Эксклюзивный
property image
property image
property image
Эксклюзивный

Продается коммерческая недвижимость улица Паруйра Севака

улица Паруйра Севака, Канакер-Зейтун, Ереван

ID 416979

$ 121,000

$1,888.27/ м²

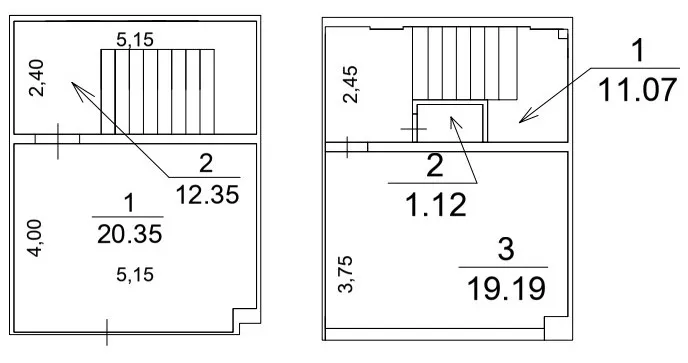
64.08 м²

1/18

Другое

Монолит

Внутри строения

Без ремонта

3,0м

Новостройка

Последнее изменение:24.11.2025

Похожие объявления

Похожие объекты не найдены